Strona tymczasowo niedostępna...

Lokal handlowo-usługowy Wysoka

lokalizacja: Wysoka, Chabrowa

2 208,00 PLN

55,00 PLN

Opis nieruchomości

Do wynajęcia lokale usługowe - powierzchnie 40-52 m²
Cena: 55 zł netto/m² | 1. piętro | Dostępne miejsca postojowe

Do wynajęcia nowoczesne lokale usługowe o powierzchniach od 40 do 52 m², zlokalizowane na 1. piętrze budynku. Przestrzenie są jasne, funkcjonalne i idealne do prowadzenia działalności gospodarczej.

Najważniejsze atuty:

powierzchnie 40-52 m²,

cena: 55 zł netto/m²,

lokale położone na 1. piętrze,

przed budynkiem dostępne miejsca postojowe dla klientów i pracowników,

możliwość dostosowania lokalu do potrzeb najemcy.

Idealne na działalność typu:

gabinety (medyczne, kosmetyczne, terapeutyczne),

biura, usługi, doradztwo,

pracownie projektowe,

małe punkty usługowe lub handlowe,

działalność online wymagającą powierzchni operacyjnej.

Lokale są dostępne od zaraz. Doskonała propozycja dla firm szukających przestrzeni w bardzo dobrej lokalizacji i o wysokim standardzie.

Zapraszam do kontaktu w celu uzyskania szczegółów oraz umówienia prezentacji!

 

Niniejsze ogłoszenie jest wyłącznie informacją i nie stanowi oferty w rozumieniu art. 66 § 1 Kodeksu Cywilnego.
Autorskie prawa majątkowe do fotografii nieruchomości przysługują wyłącznie firmie: MNieruchomości Magdalena Rumijowska. Kopiowanie, przetwarzanie, rozpowszechnianie fotografii bez zgody MNieruchomości Magdalena Rumijowska jest zabronione i będzie traktowane jako naruszenie ustawy z dnia 4 lutego 1994 r. o prawie autorskim i prawach pokrewnych.

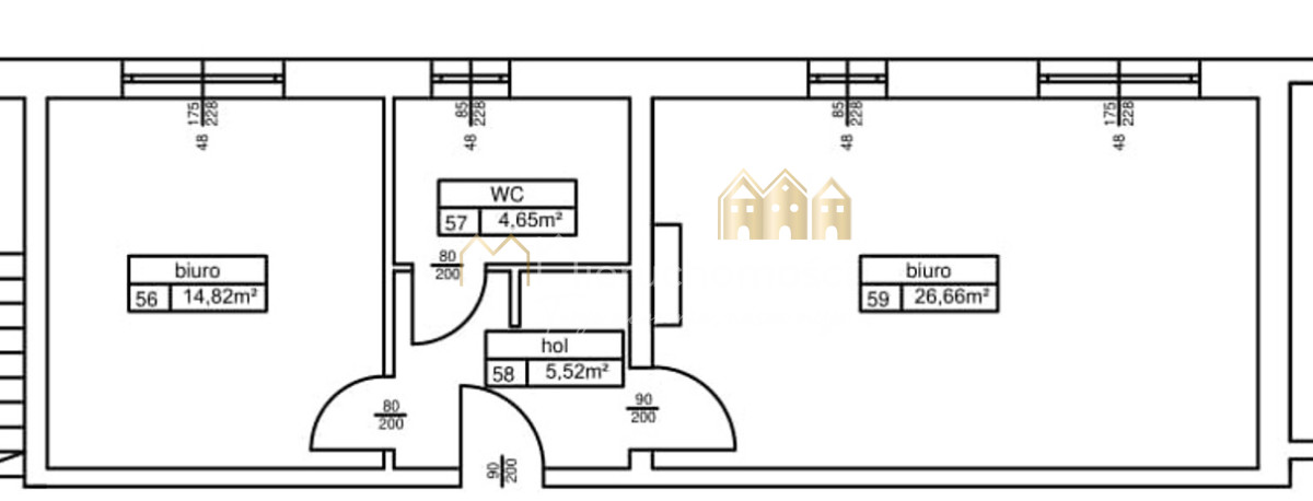
Plan Nieruchomości

Kontakt do opiekuna:

MNieruchomości

Magdalena Rumijowska
Nieprawidłowy adres E-mail
Mapa

Strona korzysta z plików cookie w celu realizacji usług zgodnie z Polityką prywatności. Możesz określić warunki przechowywania lub dostępu do cookie w Twojej przeglądarce.